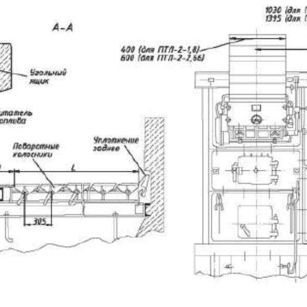
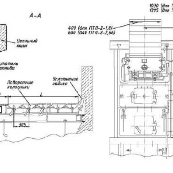
Устройство и принцип работы топка ПТЛ-РПК-2-2660/2440
Топки ПТЛ-РПК-2-2660/2440 с ленточным питателем топлива предназначены для непрерывной подачи топлива на колосниковую решетку паровых и водогрейных котлов. Состоят из угольного бункера с заслонкой для дозирования топлива, и пластинчатого транспортера. Скорость задается импульсивным вариатором, и влияет на производительность. На силу заброса топлива влияет частота вращения ротора, который работает от привода. Привод состоит из электродвигателя, импульсного вариатора, ременных и цепных передач.
Условное обозначение
Топка ПТЛ-РПК-2-2660/2440, где:
- П – питатель;
- Т – топлива;
- Л – ленточный;
- Р – решетка;
- П – с поворотными;
- К – колосниками.
- 2 — количество питателей;
- 2660 — ширина колосниковой решетки, мм;
- 2440 — длина колосниковой решетки, мм.
Монтаж топки ПТЛ-РПК-2-2660/2440
Топка ПТЛ-РПК-2-2660/2440 поставляется в полной комплектации, в которую входят: решетка колосниковая, фронт, составные и монтажные детали топки, питатель топлива ПТЛ. Устанавливается на предварительно выровненную поверхность без необходимости в строительстве специального фундамента. Крепится к поверхности при помощи анкерных болтов.
Монтаж котельного оборудования производится с соблюдением СНиП 11-35-76 «Котельные установки» и «Правил устройства и безопасной эксплуатации паровых и водогрейных котлов».


